

Lo spazio è un loft milanese, risultato di un recupero di una ex officina, di circa 40 mq, intimo e male illuminato. Grazie alla flessione del settore immobiliare l’unità ha rappresentato per l’acquirente una vera occasione. Il prezzo d’acquisto infatti era fissato a circa la metà del suo valore di mercato, il che ci ha consentito di porre pochi limiti di budget all’intervento.
Il vantaggio in questo caso è stato l’acquisto al rustico, che spesso spaventa l’acquirente che non riesce ad immaginarne le potenzialità. Grazie ad una consulenza specifica è stato possibile creare le condizioni perfette per trasformare lo spazio non solo in un appartamento di grande suggestione, ma anche in un vero e proprio investimento immobiliare, partendo proprio dalla ricerca dell’unità stessa.

Nonostante la ristrutturazione massiccia e di altissima qualità, grazie al basso prezzo d’acquisto, l’operazione si è comunque mantenuta sotto il valore di mercato della zona.
L’intervento di forte impatto stilistico aumenta il valore commerciale dell’immobile.
Non ci sono finestre ma solo grandi lucernai a soffitto comandabili e programmabili elettronicamente e forniti di sensori antipioggia.
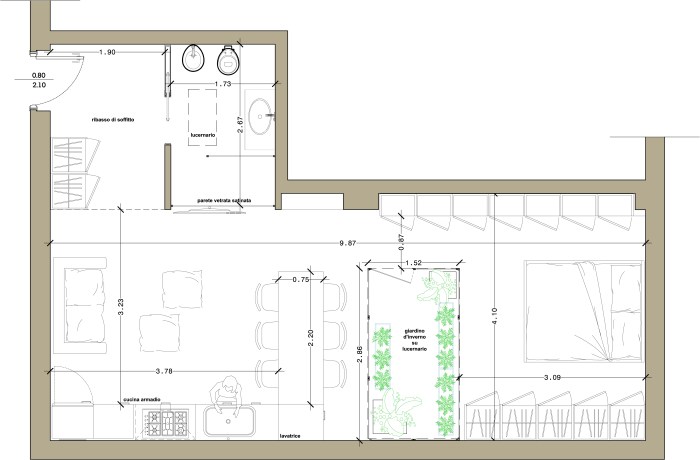
Dopo l’intervento, si presenta come luminoso open space. L’unico ambiente delimitato da muri è il bagno, separato dal living con una grande vetrata satinata che dona luce senza rinunciare alla privacy.
Al centro dell’appartamento, il cuore dell’intervento, il grande giardino d’inverno di circa 5 mq rappresenta la vera peculiarità del progetto. La zona giorno e notte sono divise solo da queste pareti vetrate che internamente ospitano piante e arbusti che hanno la duplice funzione di filtro per garantire un certo livello di intimità nella camera da letto e di quinta scenica. Inoltre il giardino è accessibile e prende aria e luce attraverso le ampie finestre a soffitto.
Le finiture sono di altissimo pregio, i pavimenti sono ricavati da vecchi legnami recuperati, le pareti sono completamente coibentate per garantire il confort termico e acustico, la cucina ad armadio consente di nascondere la parete attrezzata per mantenere una pulizia estetica quando non è in esercizio.
L’ampio tavolo adiacente al giardino permette di ospitare fino ad 8 persone.
La metratura limitata e la particolare conformazione si sono trasformate in un punto di forza nello studio del progetto, permettendo di realizzare un’unità davvero unica.